Product Description:
1. Extremely high breaking capacity and zero arcing, which improves the protection reliability;
2. Unparalleled ultra-small size;
3. Complete modular structural accessories;
4. The main circuit adopts different wiring methods, which brings great convenience to installation;
5. Users can use different types of intelligent controllers according to the requirements of grid protection and power measurement and management;
6. It has extremely high mechanical life, electrical life and operational reliability;
7. The circuit breaker can be connected from the top or bottom, which is convenient for users to install.
SAX series intelligent universal circuit breakers (hereinafter referred to as circuit breakers) are suitable for distribution networks with AC 50/60HZ, rated working voltage 400V ~1140 V, and rated working current 200A ~ 6300A. They are used to distribute electric energy and protect lines to protect equipment from overload, short circuit, undervoltage, grounding and other faults. The circuit breaker has communication and intelligent protection functions, which can accurately realize selective protection between upper and lower levels, improve power supply reliability, and avoid unnecessary power outages. The circuit breaker also has an isolation function.
Circuit breakers with a rated working current of 630A or less can also be used in AC 50Hz, 400V distribution networks as overload, short circuit, undervoltage and ground fault protection for motors. Under normal conditions, they can also be used for infrequent starting and stopping of motors.
1. Extremely high breaking capacity and zero arcing, which improves the protection reliability;
2. Unparalleled ultra-small size;
3. Complete modular structural accessories;
4. The main circuit adopts different wiring methods, which brings great convenience to installation;
5. Users can use different types of intelligent controllers according to the requirements of grid protection and power measurement and management;
6. It has extremely high mechanical life, electrical life and operational reliability;
7. The circuit breaker can be connected from the top or bottom, which is convenient for users to install.
1. Ambient air temperature -40℃~+60℃, average value within 24 hours ≤+35℃;
2. The altitude of the installation site shall not exceed 2000m;
3. The relative humidity of the air shall not exceed 50% when the maximum temperature is +40℃. Higher relative humidity is allowed at lower temperatures. For example, the relative humidity can reach 90% at 20℃. Special measures shall be taken for occasional condensation caused by temperature changes.
4. The pollution level is level 3;
5. The installation category of the main circuit of the circuit breaker is IV , and the installation category of other auxiliary circuits (except the undervoltage release coil and the primary coil of the power module for the electronic release are the same as the circuit breaker) and control circuits is III ;
6. The circuit breaker should be installed in a place without explosion hazard, conductive dust, or sufficient corrosion to metal and insulation damage;
7. The vertical inclination of the circuit breaker installation shall not exceed 5°;
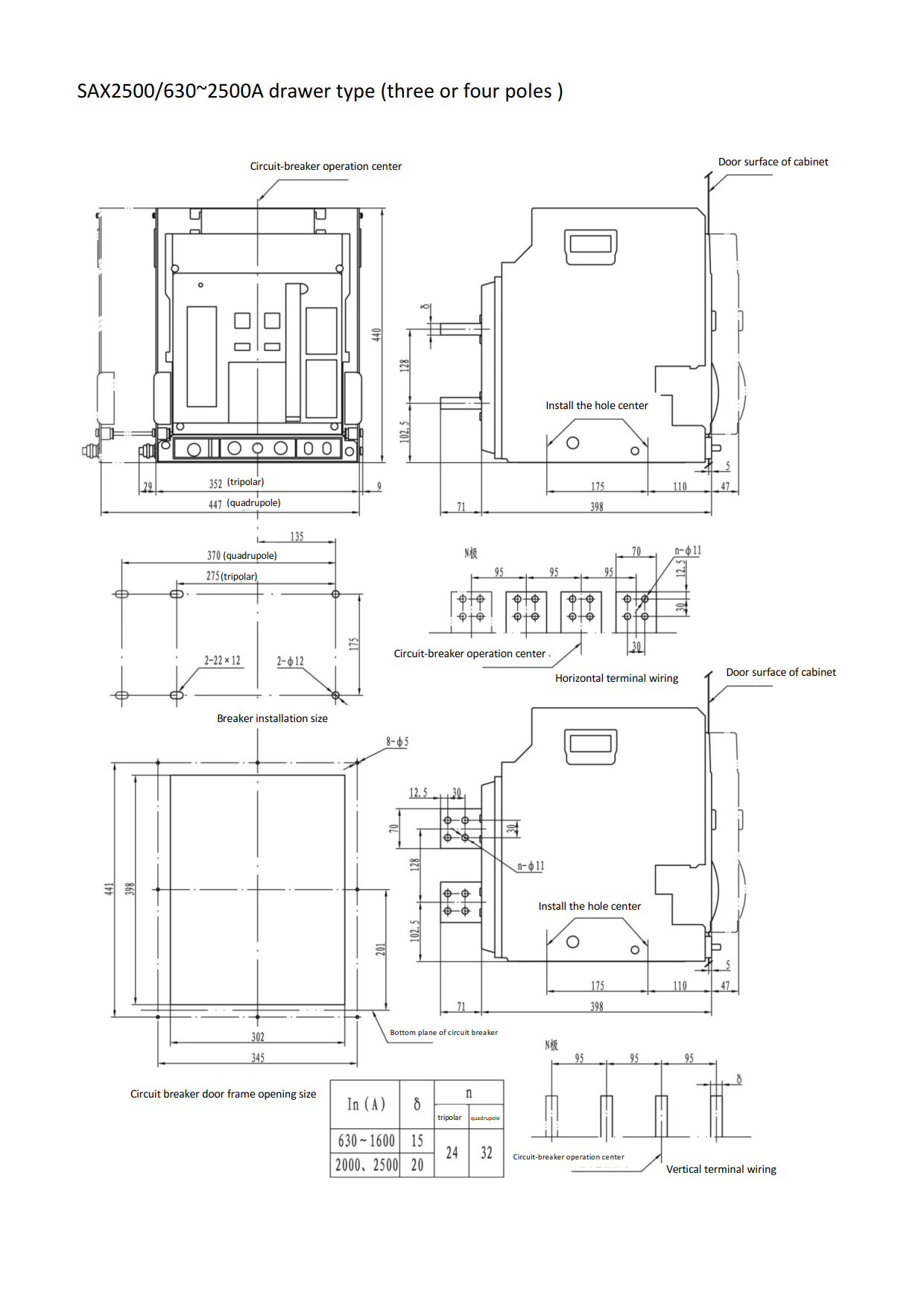
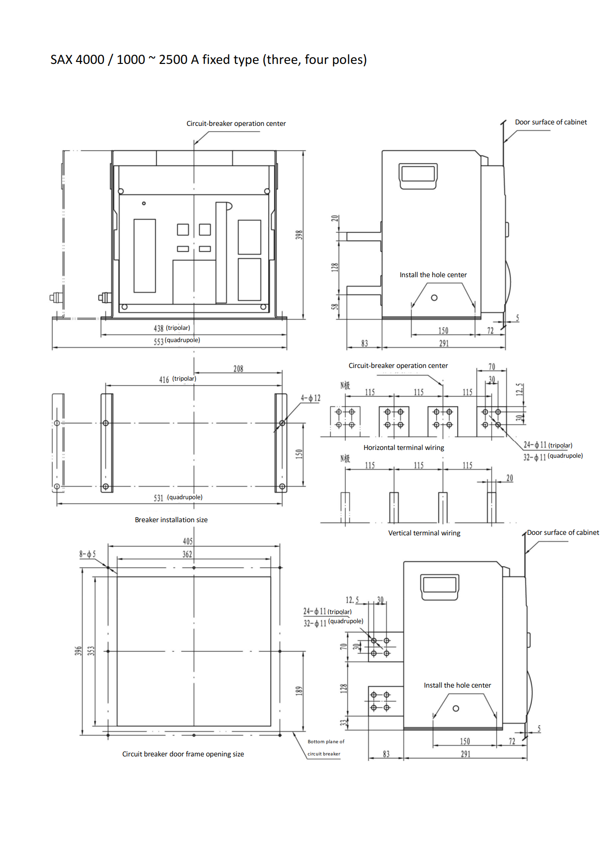
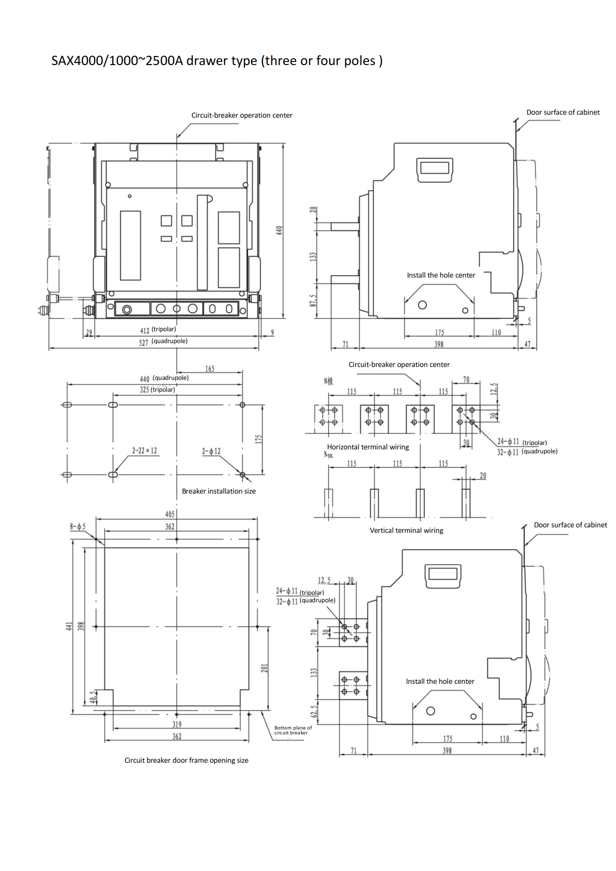
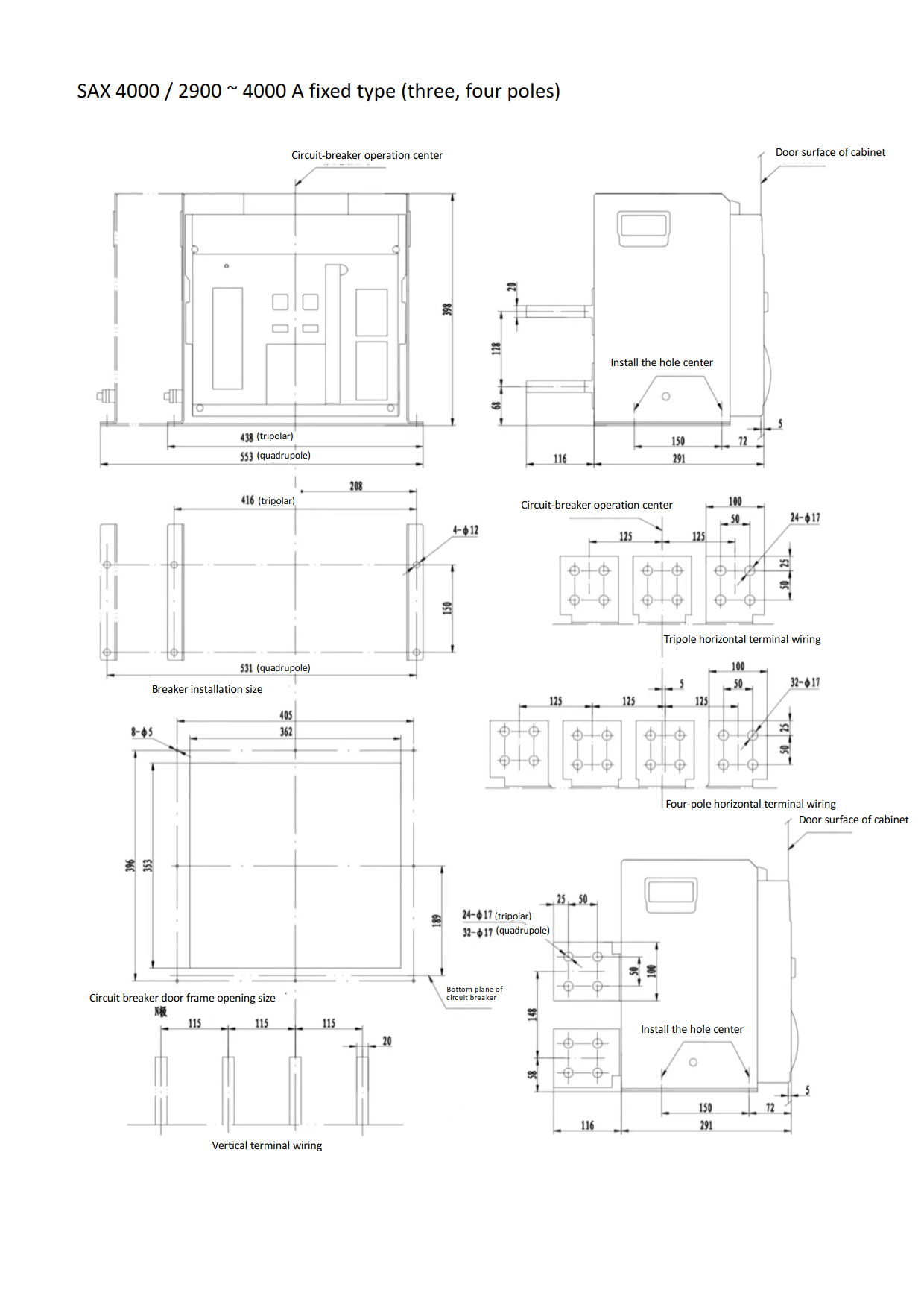
8. The circuit breaker is installed in a small cabinet and a door frame is added, with a protection level of IP 40.



























